The client aims for the log cabin to be a home office as they enter retirement. This unique project is currently a work in progress, requiring bespoke work from locally sourced tradesmen. Providing a personal touch for the internal joinery and furnishing.

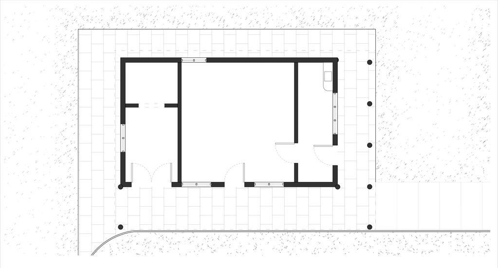
Existing layout.

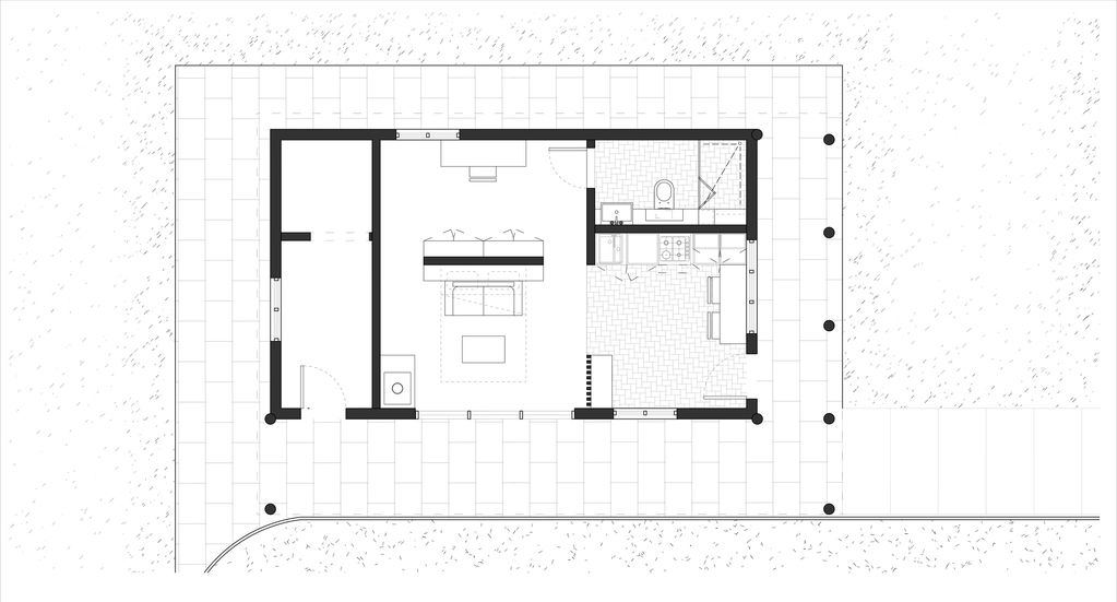
Revised layout.

Cut-away axonometric.