Early architectural concept design for community lead housing project. Workings to define the strategic approach to reintegrating community centres with community housing.

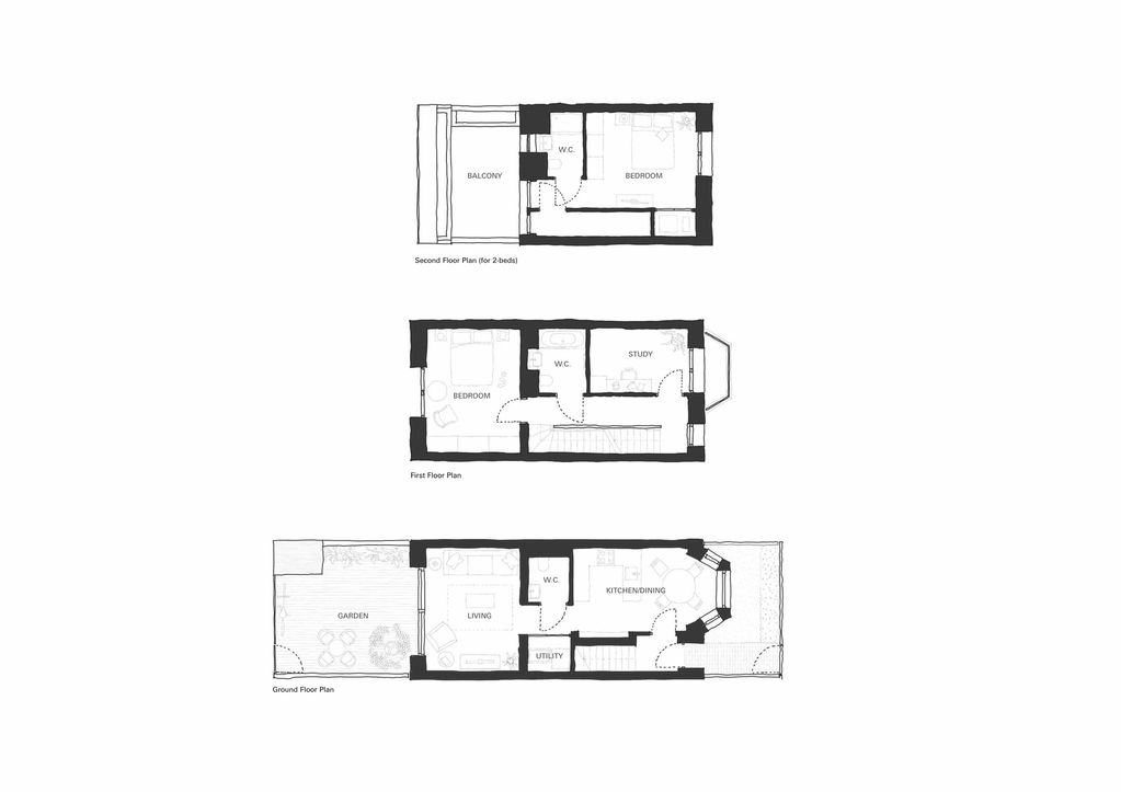
Townhouse typologies.

Sketch layouts.

Placemaking concept, reanimating the street.

Placemaking concept, junction landmark.